Nuove testimonianze di scultura architettonica di età carolingia in Ascoli Piceno: i capitelli in opera nelle bifore del campanile della chiesa dei Ss. Vincenzo e Anastasio/New evidence of Carolingian architectural sculpture in Ascoli Piceno: the capitals in the mullioned windows of the bell tower of the Church of Saints Vincenzo and Anastasio
Downloads
Additional Files
Pubblicato
Fascicolo
Sezione
Licenza
La licenza adottata è la Creative Commons - Attribuzione/Condividi allo stesso modo. Ovvero, gli autori che pubblicano su questa rivista accettano le seguenti condizioni:
- Gli autori mantengono i diritti sulla loro opera e cedono alla rivista il diritto di prima pubblicazione dell'opera, contemporaneamente licenziata sotto una Licenza Creative Commons - Attribuzione che permette ad altri di condividere l'opera indicando la paternità intellettuale e la prima pubblicazione su questa rivista.
- Gli autori possono aderire ad altri accordi di licenza non esclusiva per la distribuzione della versione dell'opera pubblicata (es. depositarla in un archivio istituzionale o pubblicarla in una monografia), a patto di indicare che la prima pubblicazione è avvenuta su questa rivista.
- Gli autori possono diffondere la loro opera online (es. in repository istituzionali o nel loro sito web) prima e durante il processo di submission, poiché può portare a scambi produttivi e aumentare le citazioni dell'opera pubblicata.
DOI:
https://doi.org/10.13138/2039-2362/3260Abstract
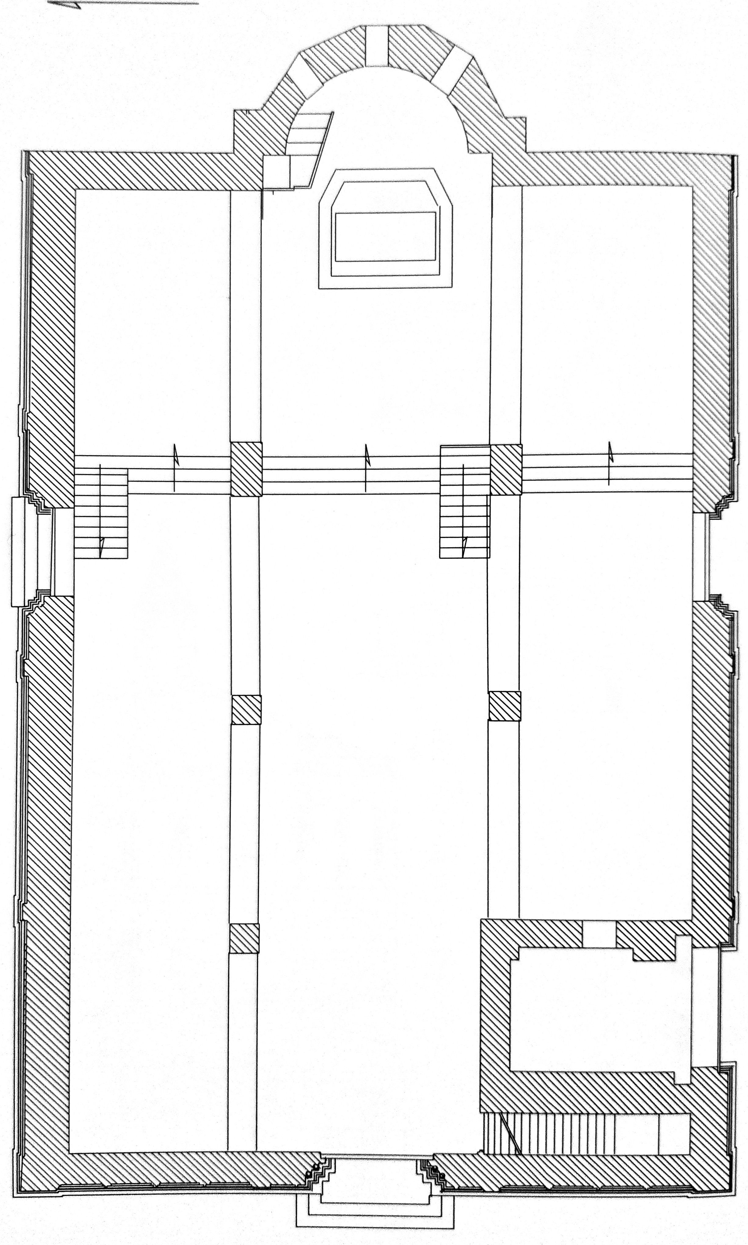
Il contributo intende ripercorrere le vicende critiche di uno degli edifici religiosi più significativi e interessanti dell’architettura medievale di Ascoli Piceno, caratterizzato da diverse fasi costruttive, non ancora ben definite e focalizzate e meritevoli di ulteriori approfondimenti e precisazioni. Attraverso la lettura degli apparati murari, in relazione anche agli interventi di restauro di fine Ottocento, mai presi in considerazioni in precedenza, e l’analisi comparata della scultura architettonica, lo studio si propone di verificare la possibile datazione al primo periodo carolingio del campanile della chiesa, come già proposto in passato da alcuni storici locali, ma di recente messa in discussione e negata.
The aim of the paper is to trace the critical events of one of the most important and interesting religious buildings of the medieval architecture of Ascoli Piceno, characterised by different phases of construction, not yet well defined and focused, and worthy of further study and clarification. The study aims at verifying the possible dating of the bell tower to the early Carolingian period, as proposed in the past by some local historians, but recently questioned and denied, through the reading of the masonry apparatus in relation to the restoration interventions of the late nineteenth century, never considered before, and through the comparative analysis of the architectural sculpture.
Riferimenti bibliografici
Riferimenti bibliografici/References
Antonelli S., (2008), Il territorio di Aprutium. Aspetti e forme delle dinamiche insediative tra VI e XI secolo, Roma: Palombi.
Antonelli S. (2010), Decorazione architettonica altomedievale e arredi dai contesti monastici abruzzesi, in Cantieri e maestranze nell’Italia medievale, Atti del convegno di studio, a cura di M.C. Somma (Chieti - San Salvo 16-18 maggio 2008), Spoleto: CISAM pp. 187-234.
Antonelli S. (2022), E luce fu … Alcune riflessioni sulle transenne di finestra altomedievali abruzzesi, «Studi Medievali e Moderni arte letteratura storia», XXVI, n.1, pp. 225-246.
Barelli L. (2018), Architettura e tecnica costruttiva a Roma nell’altomedioevo. Saggi, Roma: Altair4 Multimedia.
Bertelli G. (1985), Le diocesi di Amelia, Narni e Otricoli, Spoleto: CISAM (Corpus della scultura altomedievale, XII).
Betti F. (1993), L’Altomedioevo: decorazione architettonica e suppellettile liturgica, in La scultura nelle Marche. Dalle origini all’età contemporanea, a cura di P. Zampetti, Firenze: Nardini pp. 83-117.
Betti F. (1995), Il transetto protocarolingio della cattedrale di Ascoli Piceno. La documentazione del restauro ottocentesco attraverso gli appunti e i disegni di Giulio Gabrielli, «Arte medievale», II s., IX, n. 2, pp. 119-139.
Betti F. (2003), Sculture carolingie del Lapidario del Museo di Roma, «Bollettino dei musei comu-nali», n.s., XVII, pp. 142-161.
Betti F. (2005), La diocesi di Sabina, Spoleto: CISAM (Corpus della scultura altomedievale, XVII).
Betti F. (2020a), Dall’acropoli al castrum. Studio storico della collegiata di Otricoli dall’Antichità all’Alto Medioevo, Roma: Campisano.
Betti F. (2020b), La cattedrale di vescovio nell’Alto Medioevo: architettura, scultur, pittur, in Da Forum Novum a Vescovio. Per uno stato degli studi sulla maoir ecclesia sabinensis, Atti della gior-nata di studi (Torri in Sabina-Vescovio, 27 ottobre 2018), a cura di A. Betori, G. Cassio, F. Licorda-ri, Roma: Campisano, pp. 145-156.
Betti F. (c.d.s.), Tra restauro e ricostruzione. Le conseguenze del terremoto dell’801 in Italia centrale attraverso tre casi di studio: la collegiata di Otricoli e le cattedrali di Vescovio e Ascoli Piceno, in La costruzione della forma architettura nell’Ita1ia medievale convegno di studi in onore di Corrado Bozzoni (Roma 22-25 maggio 2017), a cura di D. Esposito, G. Villa, A. Viscogliosi (c.d.s).
Brunetto A. et al. (2020), L’intervento conservativo sulle transenne in stucco gessoso e lapis specu-laris della basilica di Santa Sabina a Roma: approccio metodologico, prassi operative e studio della tecnica esecutiva, «Hortus Artium Medievalium», 26, pp. 60-72.
Cappelli F. (2000), La cattedrale di Ascoli Piceno. Società e cultura in una città dell’Occidente, Ascoli Piceno: Lamusa.
Cappelli F. (2008), La cattedrale nel Medioevo, in L cattedrale di Ascoli Piceno, a cura di A.A. Amadio, L. Morganti, M. Picciolo, Ascoli Piceno: D’Auria, pp. 65-73.
Cesari E. (1918), La chiesa dei SS. Vincenzo e Anastasio in Ascoli Piceno, «Arte e storia», XXXVII, n. 5, pp. 184-189.
D’Attanasio M. (2018), Transenna lucifera prima metà del IX secolo, in, Restituzioni 2018. Tesori d’arte restaurati, catalogo della mostra (Torino 28 marzo-16 settembre), a cura di C. Bertelli, G. Bonsanti, Venezia: Marsilio, pp. 111-113.
D’Ettorre F. (1993), La diocesi di Todi, Spoleto: CISAM (Corpus della scultura altomedievale, XIII).
Favole P. (1993), Le Marche, Milano: Jaca Book (Italia romanica, 14).
Fei F. (1986), Per un «Corpus» della cultura altomedievale nelle Marche, Atti del VI congresso nazionale di Archeologia Cristiana (Pesaro-Ancona 19-23 settembre 1983), Firenze: La nuova Italia, pp. 503-516.
Flaminio R. (2020), Transenne di finestra a Roma e nel Lazio in età carolingia: osservazioni su una particolare tipologia di arredo architettonico, in Grata più delle stelle. Pasquale I (817-824) e la Roma del suo tempo, a cura di S. Ammirati, A. Ballardini, G. Bordi, Roma: Efesto, pp. 52-75.
Flamino R., Guidobaldi F. (2020), Il sistema di illuminazione naturale degli edifici altomedioevali e medioevali a Roma: finestrati e transenne lucifere, «Hortus Artium Medievalium», 26, pp. 27-44.
Frondoni A. (1994), Rilievi paleocristiani e altomedievali del battistero e della cattedrale di Albenga: recenti restauri, in Historiam pictura refert. Miscellanea in onore di padre Alejandro Recio Ve-ganzones O.F.M., Roma: Pontificio Istituto di Archeologia Cristiana, pp. 253-269.
Gabrielli G. (1887), Ristauro di una torre monumentale ad Ascoli Piceno, «Arte e storia», VI, 31, pp. 237-238.
Greppi P. (2016), Cantieri, maestranze e materiali nell’edilizia sacra a Milano dal IV al XII secolo. Analisi di un processo di trasformazione, Sesto Fiorentino: All’insegna del giglio.
Leporini L. (1955), Ascoli Piceno. Guida artistica illustrata, Ascoli Piceno: Tipo Litografica.
Leporini L. (1964), Ascoli Piceno. Guida artistica illustrata, Ascoli Piceno.
Madonna M.A. (2015), Da ecclesia a cathedralis. La testimonianza dell’arredo, in Atri e la sua cat-tedrale prima degli Acquaviva,atti del convegno (Atri, 11 maggio 2013), a cura di M.A. Madonna e M.C. Rossi, Pescara: Zip, pp. 50-61.
Melucco Vaccaro A. (1974), La diocesi di Roma. La II regione ecclesiastica, Spoleto: CISAM (Corpus della scultura altomedievale,VII, 3).
Melucco Vaccaro A., Paroli L. (1995), La diocesi di Roma. Il Museo dell’Alto Medioevo, : CISAM (Corpus della scultura altomedievale, VII, 6).
Panazza G., Tagliaferri A. (1966), La diocesi di Brescia, Spoleto (Corpus della scultura altomedie-vale, III).
Pani Ermini L. (1974), La diocesi di Roma. La raccolta dei Fori Imperiali, Spoleto: CISAM (Corpus della scultura altomedievale, VII, 2).
Pannuzi S. (2020), Illuminazione naturale e spazi finestrati nelle chiese paleocristiane ed altome-dioevali: le transenne di finestra in stucco, «Hortus Artium Medievalium», 26, pp. 45-59.
Pannuzi S., Lugli S. (2018), Sistemi di chiusura degli spazi finestrati nell’Altomedioevo: transenne di finestra in pietra e in stucco di gesso e lapis specularis, in GeoArcheoGypsum2019. Geologia e Archeologia del Gesso. Dal lapis specularis alla scagliola, a cura di D. Gullì, S. Lugli, R. Rug-gieri, R. Ferlisi, Palermo (stampa 2019): Regione siciliana , pp. 237-261.
Piva P. (2012), Il romanico nelle Marche, edizione a cura di C. Cerioni, Milano: Jaca Book.
Raspi Serra J. (1974), Le diocesi dell’Alto Lazio. Bagnoregio, Bomarzo, Castro, Civita Castellana, Nepi, Orte, Sutri, Tuscania, Spoleto: CISAM (Corpus della scultura altomedievale, VIII).
Rodilossi A. (1975), Guida per Ascoli Piceno, Teramo.
Sacconi G. (1903), Relazione dell’Ufficio regionale per la conservazione dei monumenti delle Mar-che e dell’Umbria, Perugia: Tipografia Guerriero Guerra.
Saladini C. (1974), Ascoli Piceno. Policentrismo e “strade delle torri” nella città vescovile, in Città e contado e feudi nell’urbanistica medievale, a cura di E. Guidoni, Roma: Multigrafica, pp. 128-148.
Salvi A. (1980), Due epigrafi medievali nella chiesa dei Santi Vincenzo ed Anastasio in Ascoli Pi-ceno, Ancona.
Serafini A. (1927), Torri campanarie di Roma e del Lazio nel Medioevo, 2 voll., Roma: Società Romana Storia Patria.
Serra L. (1929), L’arte nelle Marche dalle origini cristiane alla fine del Gotico, Pesaro: Gualtiero Federici.
Speranza L., Ferranti E. (2019), La necropoli altomedievale di piazza Ventidio Basso ad Ascoli Pi-ceno: prime considerazioni, in Economia e territorio. L’Adriatico centrale tra tarda Antichita e alto Medioevo, cura di E. Cirelli, E. Giorgi, G. Lepore, Oxford: BAR Publishing (BAR international se-ries, 2926), pp. 405-418.
Tagliaferri A. (1981), Le diocesi di Aquileia e Grado, Spoleto: CISAM (Corpus della scultura alto-medievale, X).
Trinci Cecchelli M. (1976), La diocesi di Roma. La I regione ecclesiastica, Spoleto: CISAM (Corpus della scultura altomedievale, VII, 4).

