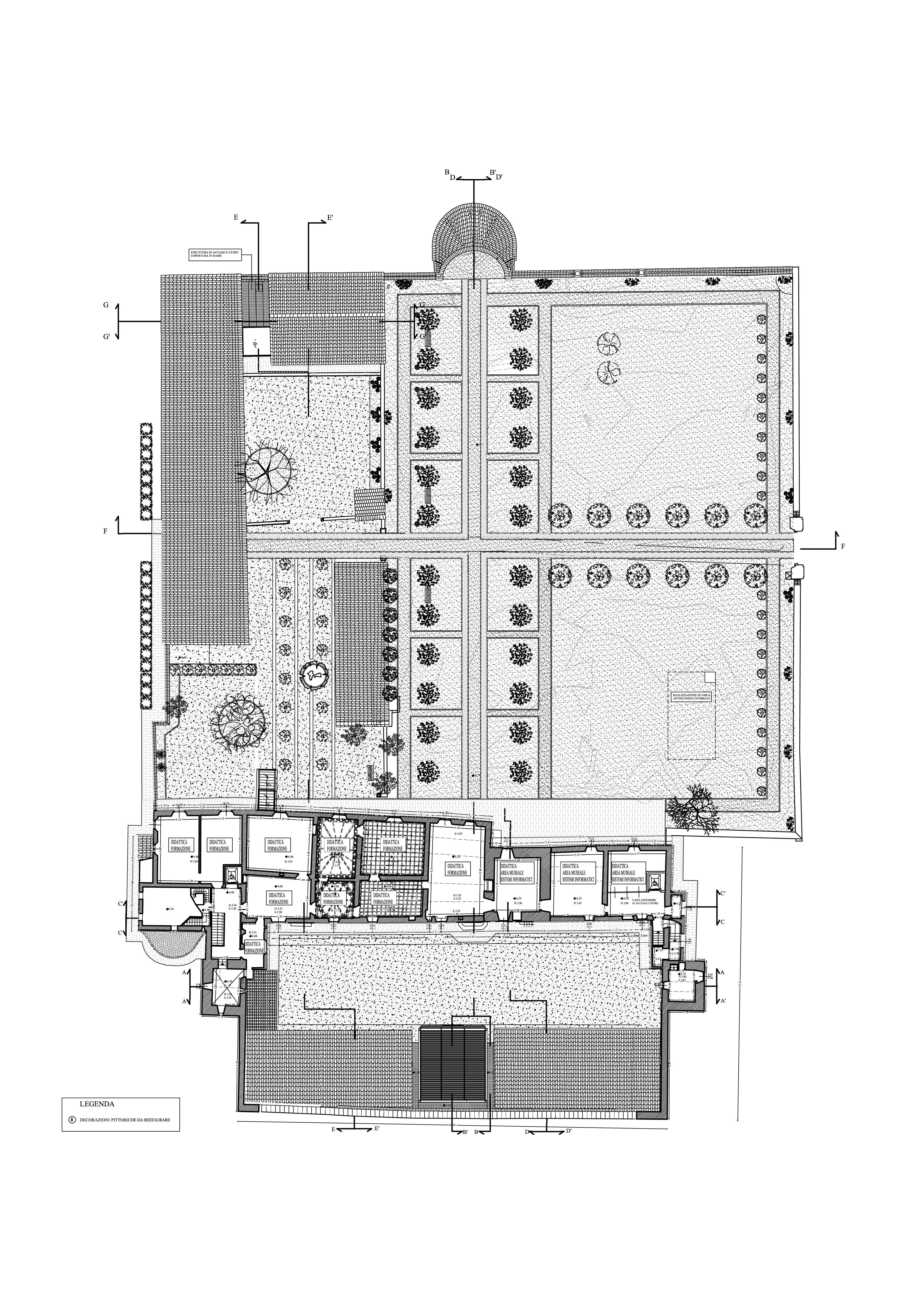
Conservazione e valorizzazione: alcune considerazioni ed il caso del Castello dell’Acciaiolo a Scandicci (FI) / Conservation and enhancement: some considerations and the case of the Acciaiolo Castle in Scandici (FI)
Downloads
Additional Files
Pubblicato
Fascicolo
Sezione
Licenza
La licenza adottata è la Creative Commons - Attribuzione/Condividi allo stesso modo. Ovvero, gli autori che pubblicano su questa rivista accettano le seguenti condizioni:
- Gli autori mantengono i diritti sulla loro opera e cedono alla rivista il diritto di prima pubblicazione dell'opera, contemporaneamente licenziata sotto una Licenza Creative Commons - Attribuzione che permette ad altri di condividere l'opera indicando la paternità intellettuale e la prima pubblicazione su questa rivista.
- Gli autori possono aderire ad altri accordi di licenza non esclusiva per la distribuzione della versione dell'opera pubblicata (es. depositarla in un archivio istituzionale o pubblicarla in una monografia), a patto di indicare che la prima pubblicazione è avvenuta su questa rivista.
- Gli autori possono diffondere la loro opera online (es. in repository istituzionali o nel loro sito web) prima e durante il processo di submission, poiché può portare a scambi produttivi e aumentare le citazioni dell'opera pubblicata.
DOI:
https://doi.org/10.13138/2039-2362/152Abstract
Riferirsi oggi alla cultura ed alle tecniche della conservazione con la concretezza ed il senso di responsabilità che queste richiamano significa rivedere e riproporre il termine e soprattutto i dati sostanziali della valorizzazione del Patrimonio culturale alla luce del valore progettuale che la conservazione ed il restauro contengono e richiedono.
Refer today to the culture and techniques of conservation, with the concreteness and sense of responsibility that these recall, means reviewing and repropose this term and especially substantial data of cultural heritage through the design value that the conservation and restoration contain and require. 
						 
					 
			

